Exposé
Ein Traum im Süden Siziliens!
Großzügige Villa in TOP-Lage und mit spektakulärer Aussicht.
| Grundstücksgröße: ca. 2.000 m² | Wohnfläche: ca. 360 m² |
| Nutzfläche: ca. 35 m² | Überdachte Terrassen: ca. 190 m² |
| Schlafzimmer: 6 | Badezimmer: 6, davon 4 en Suite |
| Küchen: 2 | Heizung: Gaszentralheizung |

Objektbeschreibung
Diese bezaubernde, nach Süden ausgerichtete Villa, wurde 1992 von einem Künstlerehepaar gebaut und befindet sich auf einer Anhöhe in einzigartiger Lage von Porto Palo. Komfortable ca. 550m² „Lebensfläche“ erstrecken sich über drei Ebenen, mit sehr großzügigen und überdachten Terrassenflächen, die Ihnen einen unverbaubaren und grandiosen Ausblick auf den Küstenort Porto Palo, den Hafen und Strand bieten.
Dank der außergewöhnlichen Lage und Beschaffenheit ist diese Immobilie eine hervorragende Investition, sowohl als zentrale private Residenz oder Ferienhaus, wie auch für Vermietung.
Gerne erhalten Sie auf Anfrage weitergehende Informationen, sowie Ihren persönlichen Zugang zu unserem Lang-Expose`.
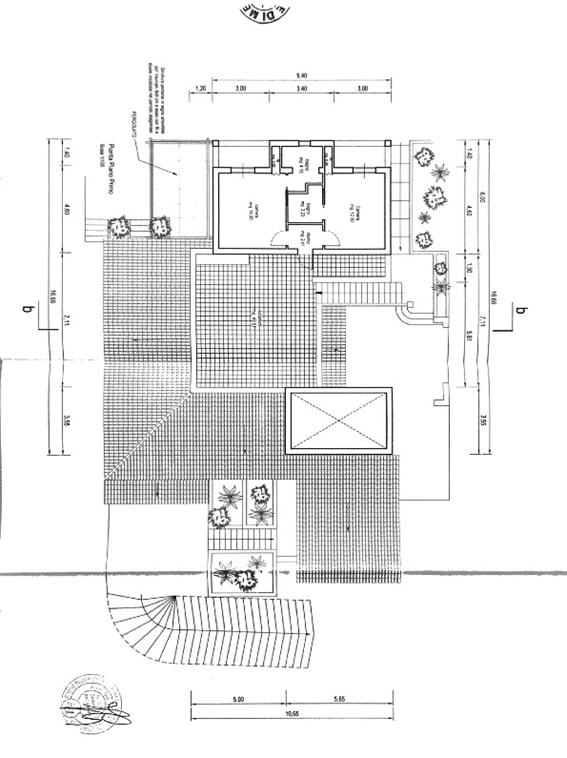
Grundrisse
Obergeschoss

Erdgeschoss

Untergeschoss

Entfernungen:
| Supermarkt | Ca. 7 km |
| Schule | Ca. 7 km |
| Kindergarten/KiTa | Ca. 7 km |
| Ärztliche Versorgung | Ca. 7 km |
| Palermo Flughafen | Ca. 108 km |
| Autobahn (Castelvetrano) | Ca. 20 km |
| Sciacca | Ca. 24 km |

Lagebeschreibung
Die hier angebotene Villa befindet sich in absolut exponierter Lage von Porto Palo, ca. 250 Meter fußläufig von dem breiten Strand und Küstenort entfernt. Porto Palo gehört zur Provinz Agrigent und liegt im südlichen Teil Siziliens, nur ca. eine Autostunde vom Flughafen Palermo entfernt. Die Küste von Porto Palo schließt auch Menfi mit ein und ist circa 10 km lang. Sie besticht durch seine wunderschönen und urtümlichen, feinen Sandstrände.
Diese einzigartige Villa steht auf einem ca. 2.000m² großen Eigentumsgrundstück mit Ausrichtung zum Meer. Das Grundstück endet zum Meer hin stark abfallend und garantiert einen unverbaubaren und grandiosen Ausblick! Die Zufahrt erfolgt über einen Privatweg, der als Sackgasse endet. Die Innenstadt von Menfi liegt nur ca.10 Autominuten vom Grundstück entfernt, wo Sie alle Einkaufsmöglichkeiten des täglichen Bedarfs vorfinden, sowie diverse gastronomische Einrichtungen und Dienstleistungen.



Menfi liegt zwischen den Städten Sciacca und Castelvetrano und ist bekannt für seine schönen, naturbelassenen Strände, dem türkisfarbenen und kristallklaren Wasser. Seit über 20 Jahren wird Menfi das europäische Gütesiegel, die Bandiera Blu (Blaue Fahne) verliehen! Diese bezieht auch Porto Palo und Le Solette im Westen sowie Lido Serrone Cipolazzo, Lido Fiori und Lido Bertolino im Osten ein. Mit dieser langjährigen Auszeichnung für die Qualität des Meerwassers gehören die Badestrände von Porto Palo und Menfi zu den saubersten in Europa. Auch sind sie durch die nur langsam zunehmende Wassertiefe in der Regel überaus kinderfreundlich.






Die Küstenstadt Menfi hat ca.12.000 Einwohner und ist bis heute vorwiegend durch die Landwirtschaft geprägt, insbesondere dem Wein-und Olivenanbau. Menfi bildet mit den Nachbargemeinden Sambuca di Sicilia, Santa Margherita di Belice und Sciacca eine der bedeutendsten Weinbauregionen Siziliens. Neben „Planeta“ ist auch seit 1958 Europas größte Winzergenossenschaft „Cantine Settesoli“ mit dem Hauptsitz in Menfi ansässig. Über 2000 Mitglieder und über 6.000 Hektar Anbaufläche machen Cantine Settesoli damit zu den Giganten der Weinwelt, mit einer reichen Biodiversität und vorzüglichen Weinen, die selbst neben erstklassigen Namen der Weinwelt bestehen können.






Daten im Überblick
Eckdaten
| Objektart | Villa mit Eigentumsgrundstück |
| Adresse | Auf Anfrage |
| Stadt-/Ortsteil/Gemeinde | Porto Palo/ Menfi / Agrigent |
| Baujahr | 1992 |
Flächen
| Wohnflächen | ca. 360 m² |
| Grundstücksgröße | 2.000 m² |
| Pool | Ca. 25 m² |
Kaufpreis & Verfügbarkeit
| Kaufpreis | 900.000€ |
| Maklercourtage | 4% vom Kaufpreis zzgl. MwSt. |
| Verfügbar ab | Sofort |
| Aktuelle Nutzung | Wohnhaus mit Vermietung |
| Mögliche Nutzung | Wohnen / Ferien- und Vermietungsobjekt |
Courtagepassus
Die Käufercourtage für die Vermittlung (Provision) in Höhe von 4% zzgl. MwSt. auf den vereinbarten Kaufpreis wird vom Käufer bezahlt. Die Provision wird zu dem Zeitpunkt fällig, in dem der Käufer Kenntnis von der Annahme seines Kaufangebotes durch den Verkäufer nimmt und wird vom Käufer bei Unterschrift des verbindlichen Vorvertrags „Compromesso/ Preliminare“ bezahlt. Sofern der Vorvertrag entfallen sollte, gilt die Zahlungspflicht bei Unterschrift des Notarvertrags „Atto di Vendita“. HB Immobilien, Harald Buchholz und seine Beauftragten erhalten unmittelbaren Zahlungsanspruch der Provision.
